Chat with us, powered by LiveChat

378 State Road

Vineyard Haven, MA

Details

Neighborhood
Downtown

Zoning
B2

Lot Size
0.29Acres

Approx Sq Feet
1,460

Type
Commercial

Link Id
44091

Year Built
1900

Summary

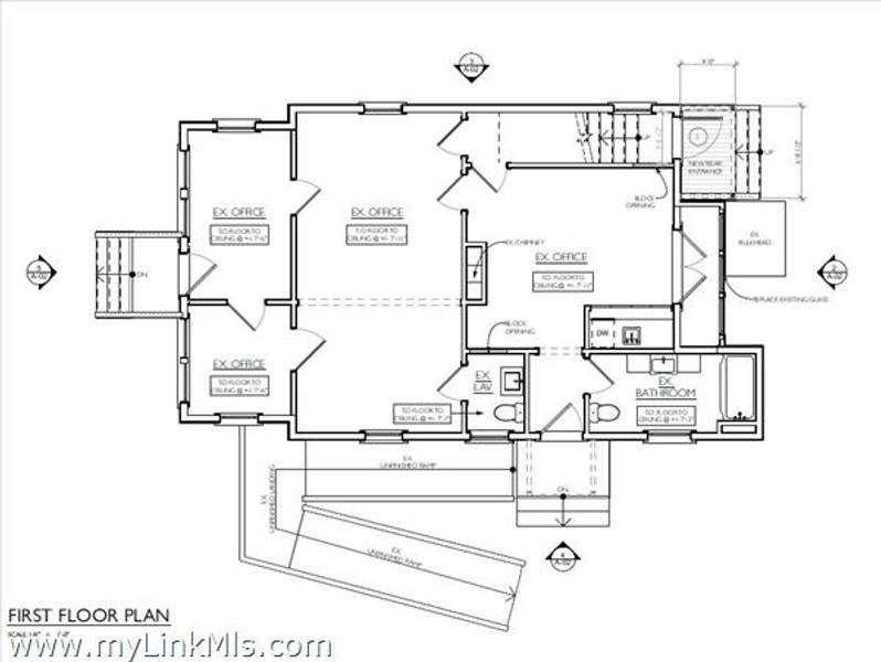
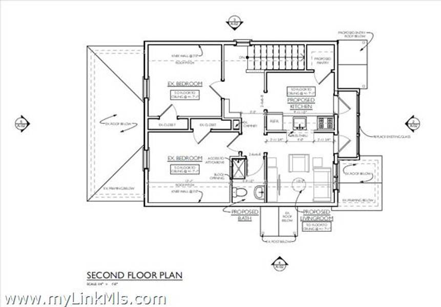
MIXED USE PROPERTY WITH PROFESSIONAL OFFICES AND TWO-BEDROOM APARTMENT – Extensively renovated mixed-use property offering commercial + residential use in a high-visibility location on State Road in Tisbury. This versatile property presents a true live-work opportunity with income-producing potential. The first floor offers four offices including a reception area, 1.5 baths, and a kitchenette, with both front and side entrances, including handicap access. The second floor features a bright and sunny two-bedroom apartment with a full bath, living room, and kitchen—ideal for owner occupancy or rental income. The entire building has been renovated and includes heat and air conditioning throughout, off-street parking for multiple vehicles in the rear, and a yard. Seller financing available, please inquire!

Location

Additional Details

Features
Central A/C, Mini-Split Heat/AC

Rooms
8

Flooring
Wood, carpet, tile

Foundation
24x28

Lead Paint Status
Unknown

Sewer
Cesspool

Water
Town

Zoning
B2

Floor 1 Description
Front door opens to an office and reception area and beyond is a large office area with 1/2 bath. At the side entrance is another large office area with kitchenette and full bath. Mini splits for heating and cooling.

Floor 2 Description
Bright and sunny 2-bedroom apartment with full bath, kitchen, dining area and living room. Central heat and a/c.

Fridge
Yes

Heat
Electric

Dryer
Hookup in basement

First Floor Bedrooms
0

Fireplaces
No

Tv
Cable

Washer
Hookup in basement

Stove
Yes

Dishwasher
No

Basement Description
Interior and exterior access. Laundry hookup in basement.